LOCUINTA "CARAS"

Aria construita: 105 mp

Aria desfasurata: 160 mp

Aria utila: 113 mp

CASA "CARAS"
 

ARIA CONSTRUITĂ
82,40 mp

ARIA DESFĂȘURATĂ
164,80 mp

   ARIA  UTILĂ 
128,17 mp

ÎNĂLȚIME  STREAȘINĂ 
3,85 m

ÎNĂLȚIME MAXIMĂ
7,61 m

DIMENSIUNI ÎN PLAN
8,0 x 10,3

   TEREN MINIM
13 x 22

  • Prezentare generală

 Casa mansardată este ideală pentru o familie cu 2 copii, iar proiectul prezentat se poate încadra într-un buget restrâns. Soluția de mansardare cu structură integrală din lemn duce la un cost de execuție redus. Proiectul se pretează foarte bine și pentru o casă de vacanță, supanta peste living având un efect spectaculos chiar dacă este o casă micuță. Proiectul a fost implementat în anul 2018 în localitatea Berceni de lângă București.

  • Descriere funcţională

    Intrarea în casă se face central, către o zona de zi unde bucătăria este apropiată de living, iar peretele comun nestructural poate fi desființat pentru o comunicare mai bună a spațiilor. Etajul mansardat este compartimentat cu un singur dormitoar având o baie spațioasă și un loc de odihnă la supantă. Casa prezentată, care poate fi și o casă de vacanță, are o suprafață utilă interioară de de 113 mp, suprafață cu terasa de la intrare inclusă.

Parter                  

terasă intrare - 3,78 mp
hol – 10,64 mp
baie – 5,16 mp
cameră tehnică - 3,72 mp

bucătărie – 9,20 mp
living – 19,75 mp
dinning - 6,08 mp
dormitor - 12,60 mp
dormitor - 12,08 mp

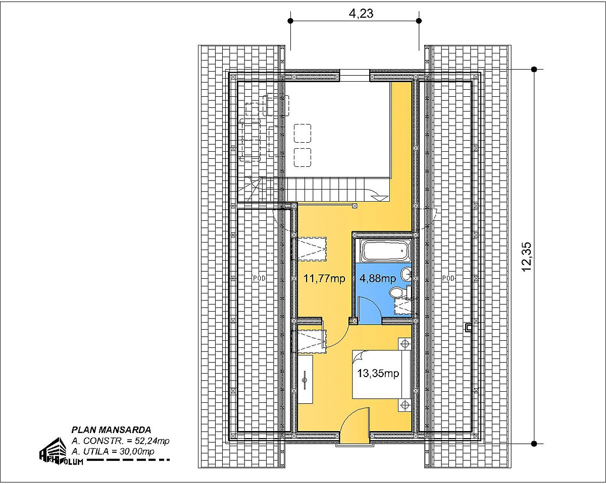
Etaj mansardat        

supantă – 11,77 mp
baie – 4,88 mp
dormitor – 13,35 mp

  • Finisaje

    Locuința cu etaj este o construcţie care are structura de rezistenţă realizată din cadre de beton armat monolit, cu închideri din cărămidă cu goluri tip GVP de 30 cm grosime. Întreaga structură va fi termoizolată la exterior cu  polistiren expandat de 10 cm grosime. Parterul este din cărămidă, iar mansarda are structură integrală din lemn. La interior, pereţii de compartimentare sunt realizaţi din cărămidă cu goluri tip GVP de 30cm, respectiv 15cm grosime. Acoperişul clădirii este realizat cu şarpantă de lemn şi învelitoare din ţiglă metalică. Scurgerea apei pluviale de pe acoperiş se realizează prin jgheaburi şi burlane din tablă zincată. Tâmplăria este realizată la exterior din profile PVC cu geam termopan, iar la interior din lemn.  

 Ca finisaje interioare se folosesc:
-    pardoseli din gresie antiderapantă la terase, scari, balcoane si vestibul;
-    pardoseli din parchet lamelar în toate camerele;
-    pardoseli din gresie în băi şi bucătărie;
-    placaj cu faianţă până la 1,80 m înălţime în băi şi bucătării;
-    tencuieli finisate cu vopsea lavabila.

  • Izolarea termică

Măsurile de termoizolare a clădirii sunt conforme normativului în vigoare, astfel obținăndu-se valori ce depașesc rezistența minima a transferului termic(R`m).Coeficientul global de izolare termica a unei cladiri (G), în ansamblu, reprezintă suma pierderilor de căldură realizate prin transmisie directă prin suprafața anvelopei clădirii, pentru  o diferenta de temperatura între interior si exterior de la 1 K, raportată la volumul clădirii, la care se adaugă pierderile de căldura aferente reîmprospătarii aerului interior, precum si cele datorate infiltrațiilor suplimentare de aer rece. Coeficientii globali de izolare termica  « G » au in vedere :
-   Pierderile de căldură prin transfer termic, aferente tuturor suprafețelor perimetrale, care delimitează volumul încalzit al clădirii ;
-   Pierderile de căldură aferente unor condiții normale de reîmprospătare a aerului intrerior ;
-   Pierderile de căldură suplimentare datorate înfiltrației în exces a aerului exterior, prin rosturile tâmplariei.
Prin concepția complexă a clădirii (configurație, alcătuirea elementelor de construcție perimetrale etc.), cât si prin modul de alcatuire a detaliilor, s-au limitat pierderile de căldură conform Normativ C 107 / 2005 privind calculul coeficienților globali de izolare termică la clădirile de locuit. 

  • Caracteristici  PSI si încadrari 

 RISC DE INCENDIU  - risc mic de incendiu / REZISTENȚĂ LA FOC - GRADUL III /CATEGORIA DE IMPORTANȚA A CONSTRUCȚIEI - "D" IMPORTANTĂ REDUSĂ / GRADUL DE IMPORTAMNȚĂ - IV

* * * VĂ PUTEM OFERI PROIECTUL DE ARHITECTURA ÎN FORMAT DIGITAL(DWG) PENTRU IMPLEMENTARE ORIUNDE ÎN ȚARĂ * * *

 

{{rating}} / 5 -
{{#hasComments}}
    {{#comments}}
  • {{author}}
    {{addedDate}}
    {{subject}}
    {{#hasRating}}
    {{rating}} / 5
    {{/hasRating}}
    {{comment}}
    {{#hasReplies}}
      {{#replies}}
    • {{author}}
      {{addedDate}}
      {{reply}}
    • {{/replies}}
    {{/hasReplies}}
  • {{/comments}}
{{/hasComments}}