LOCUINTA "FLORENTINA"

Aria construita: 65 mp

Aria desfasurata: 136 mp

Aria utila: 105.52 mp

CASA "FLORENTINA"

ARIA CONSTRUITĂ
65,00 mp

ARIA DESFĂȘURATĂ
136,00 mp

  ARIA  UTILĂ 
105,52 mp

ÎNĂLȚIME  STREAȘINĂ 
4,60 m

ÎNĂLȚIME MAXIMĂ
8,08 m

DIMENSIUNI ÎN PLAN
5,00x13,00

  TEREN MINIM
8 x 21

  • Prezentare generală

   Casa P+1E cu arhitectură clasică este cea mai bună soluție pentru terenurile înguste specifice urbanizării noastre. Multe loturi au deschideri mici de 8-10 metri liniari, iar această constrângere duce la soluții de case puțin înghesuite. 
   În ciuda faptului că terenul este mic, acest tip de locuință crează sentimentul unei case mari, iar interiorul aerisit dar și funcțional este deschis vizual către curtea din față amenajată cu cât mai multă verdeață. 

  • Descriere funcţională

   Intrarea în casa se face prin lateralul locuiței printr-un vestibul care te direcționează către zona de zi amplasată spre zona din fața casei. Scara din beton armat poziționată central de dirijează către etajul compus din trei dormitoare și o baie mare. Acest tip de casa cu o suprafață utilă interioară de de 105mp este soluția perfectă pentru o familie de 4-5 persoane.

Parter                  
vestibul – 10,53 mp
debara - 2,66 mp

living - 23,22 mp
bucătărie - 8,70 mp

baie – 4,65 mp

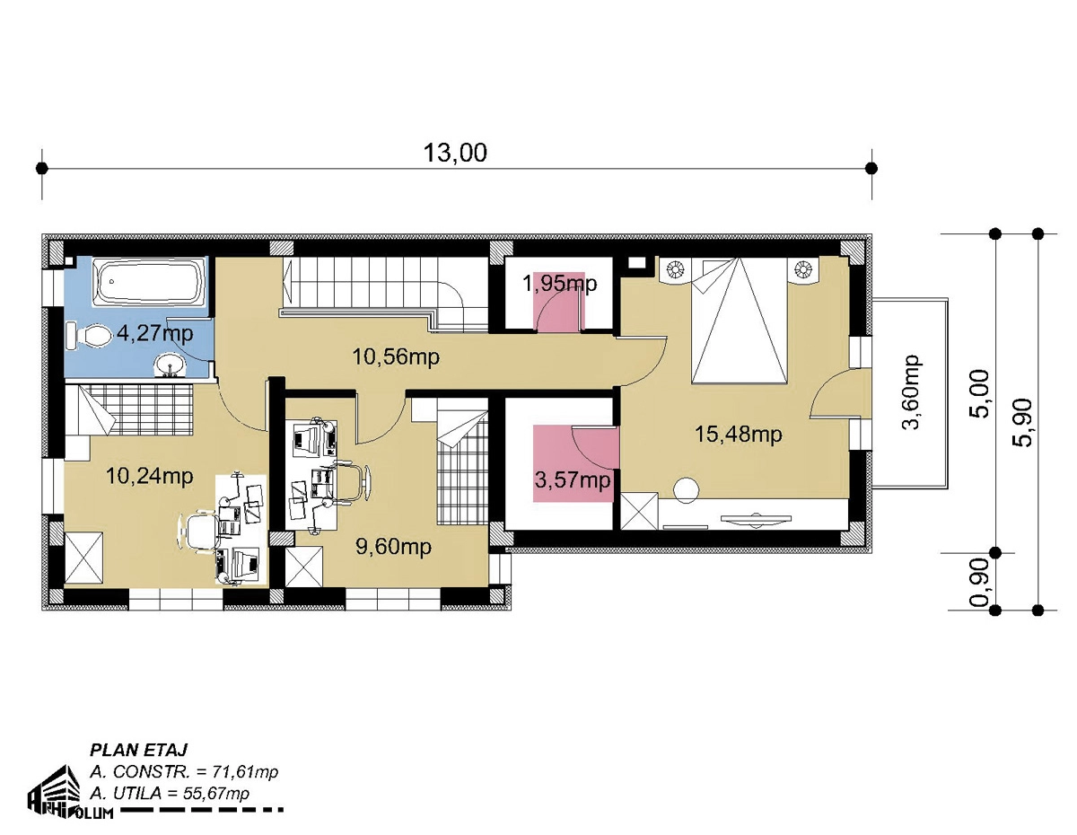
Etaj      
casa scării și hol – 10,56 mp
debara - 1,95 mp

baie – 4,27 mp
dormitor – 15,48 mp
dressing - 3,57 mp

dormitor – 9,60 mp
dormitor - 10,24 mp

  • Finisaje

    Locuința cu etaj este o construcţie care are structura de rezistenţă realizată din cadre de beton armat monolit, cu închideri din cărămidă cu goluri tip GVP de 30 cm grosime. Întreaga structură va fi termoizolată la exterior cu  polistiren expandat de 10 cm grosime. Parterul este din cărămidă, iar mansarda are structură integrală din lemn. La interior, pereţii de compartimentare sunt realizaţi din cărămidă cu goluri tip GVP de 30cm, respectiv 15cm grosime. Acoperişul clădirii este realizat cu şarpantă de lemn şi învelitoare din țiglă de tablă. Scurgerea apei pluviale de pe acoperiş se realizează prin jgheaburi şi burlane din tablă zincată. Tâmplăria este realizată la exterior din profile PVC cu geam termopan, iar la interior din lemn.  

 Ca finisaje interioare se folosesc:
-    pardoseli din gresie antiderapantă la terase, scari si vestibul;
-    pardoseli din parchet lamelar în toate camerele;
-    pardoseli din gresie în băi şi bucătărie;
-    placaj cu faianţă până la 1,80 m înălţime în băi şi bucătării;
-    tencuieli finisate cu vopsea lavabila.

  • Izolarea termică

Măsurile de termoizolare a clădirii sunt conforme normativului în vigoare, astfel obținăndu-se valori ce depașesc rezistența minima a transferului termic(R`m).Coeficientul global de izolare termica a unei cladiri (G), în ansamblu, reprezintă suma pierderilor de căldură realizate prin transmisie directă prin suprafața anvelopei clădirii, pentru  o diferenta de temperatura între interior si exterior de la 1 K, raportată la volumul clădirii, la care se adaugă pierderile de căldura aferente reîmprospătarii aerului interior, precum si cele datorate infiltrațiilor suplimentare de aer rece. Coeficientii globali de izolare termica  « G » au in vedere :
-   Pierderile de căldură prin transfer termic, aferente tuturor suprafețelor perimetrale, care delimitează volumul încalzit al clădirii ;
-   Pierderile de căldură aferente unor condiții normale de reîmprospătare a aerului intrerior ;
-   Pierderile de căldură suplimentare datorate înfiltrației în exces a aerului exterior, prin rosturile tâmplariei.
Prin concepția complexă a clădirii (configurație, alcătuirea elementelor de construcție perimetrale etc.), cât si prin modul de alcatuire a detaliilor, s-au limitat pierderile de căldură conform Normativ C 107 / 2005 privind calculul coeficienților globali de izolare termică la clădirile de locuit. 

  • Caracteristici  PSI si încadrari 

 RISC DE INCENDIU  - risc mic de incendiu / REZISTENȚĂ LA FOC - GRADUL III /CATEGORIA DE IMPORTANȚA A CONSTRUCȚIEI - "D" IMPORTANTĂ REDUSĂ / GRADUL DE IMPORTAMNȚĂ - IV

* * * VĂ PUTEM OFERI PROIECTUL DE ARHITECTURA ÎN FORMAT DIGITAL(DWG) PENTRU IMPLEMENTARE ORIUNDE ÎN ȚARĂ * * *

 

{{rating}} / 5 -
{{#hasComments}}
    {{#comments}}
  • {{author}}
    {{addedDate}}
    {{subject}}
    {{#hasRating}}
    {{rating}} / 5
    {{/hasRating}}
    {{comment}}
    {{#hasReplies}}
      {{#replies}}
    • {{author}}
      {{addedDate}}
      {{reply}}
    • {{/replies}}
    {{/hasReplies}}
  • {{/comments}}
{{/hasComments}}