LOCUINTA "LIDIA"

Aria construita: 107.45 mp

Aria desfasurata: 187.95 mp

Aria utila: 156.95 mp

CASA "LIDIA"

ARIA CONSTRUITĂ
107,45 mp

ARIA DESFĂȘURATĂ
187,95 mp

   ARIA    UTILĂ 
156,23mp

ÎNĂLȚIMEA STREAȘINĂ 
3,28 m

 ÎNĂLȚIME 
MAXIMĂ
7,05 m

 DIMENSIUNI  ÎN PLAN
10 x 10,8

  TERERN  MINIM
16 x 22

  • Prezentare generală

       Casa prezentată are o arhitectură simplă și atrăgătoare putând fi construită fără multe complicații. Terasa din față menită să amintească de prispa tradițională are rolul de a te invita în atmosfera relaxantă a unei case primitoare.

  • Descriere funcţională

    Locuința a fost concepută cu zona de zi separată fonic de zona de noapte prin holul central pe întreaga lungime a casei, iar geamurile mari ale livingului și dormitorului sunt poziționate către zona înverzită a grădinii din față. Mansarda construită integral din lemn dă posibilitatea unei compartimetări flexibile dar și realizarea acesteia cu costuri mai reduse. 

Parter                  
terasă față  – 26,95 mp
hol si casa scării – 13,96 mp
living  19,50 mp
bucătărie  7,07 mp
sas – 2,07 mp
debara - 3,80 mp
baie – 6,03 mp
dormitor – 12,25 mp

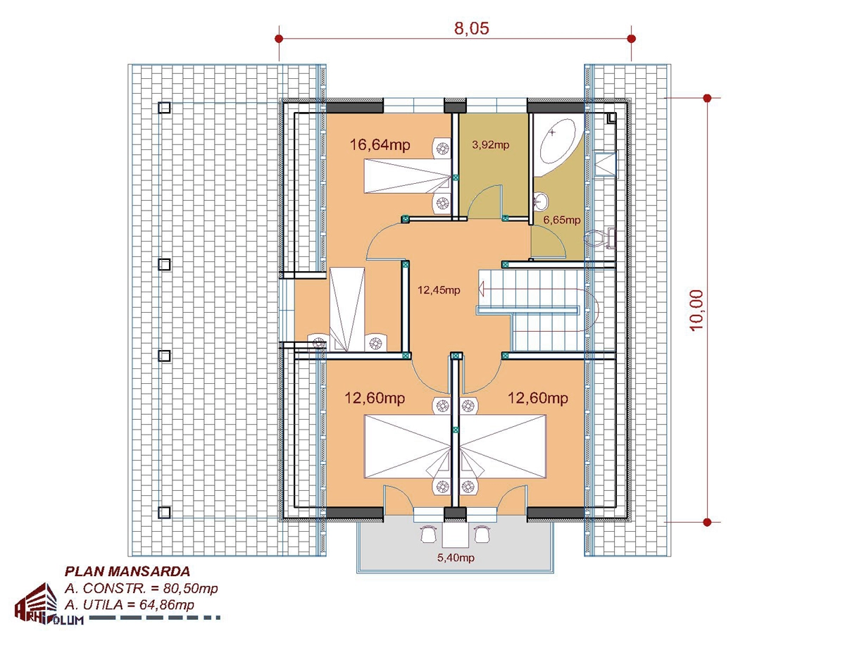
Mansardă                  
casa scării  – 12,45 mp
dressing – 3,92 mp
baie  6,65 mp
dormitor  16,64 mp
dormitor – 12,60 mp
dormitor - 312,60 mp

  • Finisaje

Casa parter cu mansardă din lemn este o construcţie care are structura de rezistenţă realizată din zidărie portantă și grizi din beton, cu închideri din cărămidă cu goluri tip GVP de 25 cm grosime. Întreaga structură va fi termoizolată la exterior cu  polistiren expandat de 10 cm grosime. La interior, pereţii de compartimentare sunt realizaţi din cărămidă cu goluri tip GVP de 25cm grosime, respectiv de 12,5cm grosime. Acoperişul clădirii este realizat cu şarpantă de lemn şi învelitoare din ţiglă metalică. Scurgerea apei pluviale de pe acoperiş se realizează prin jgheaburi şi burlane din tablă zincată. Tâmplăria este realizată la exterior din profile PVC cu geam termopan, iar la interior din lemn.  

 Ca finisaje interioare se folosesc:
-    pardoseli din gresie antiderapantă la terasa, scari si hol intrare;
-    pardoseli din parchet lamelar în toate camerele;
-    pardoseli din gresie în băi şi bucătărie;
-    placaj cu faianţă până la 1,80 m înălţime în băi şi bucătărie;
-    tencuieli finisate cu vopsea lavabila.

  • Izolarea termică

Măsurile de termoizolare a clădirii sunt conforme normativului în vigoare, astfel obținăndu-se valori ce depașesc rezistența minima a transferului termic(R`m).Coeficientul global de izolare termica a unei cladiri (G), în ansamblu, reprezintă suma pierderilor de căldură realizate prin transmisie directă prin suprafața anvelopei clădirii, pentru  o diferenta de temperatura între interior si exterior de la 1 K, raportată la volumul clădirii, la care se adaugă pierderile de căldura aferente reîmprospătarii aerului interior, precum si cele datorate infiltrațiilor suplimentare de aer rece. Coeficientii globali de izolare termica  « G » au in vedere :
-   Pierderile de căldură prin transfer termic, aferente tuturor suprafețelor perimetrale, care delimitează volumul încalzit al clădirii ;
-   Pierderile de căldură aferente unor condiții normale de reîmprospătare a aerului intrerior ;
-   Pierderile de căldură suplimentare datorate înfiltrației în exces a aerului exterior, prin rosturile tâmplariei.
Prin concepția complexă a clădirii (configurație, alcătuirea elementelor de construcție perimetrale etc.), cât si prin modul de alcatuire a detaliilor, s-au limitat pierderile de căldură conform Normativ C 107 / 2005 privind calculul coeficienților globali de izolare termică la clădirile de locuit. 

  • Caracteristici  PSI si încadrari 

 RISC DE INCENDIU  - risc mic de incendiu / REZISTENȚĂ LA FOC - GRADUL III /CATEGORIA DE IMPORTANȚA A CONSTRUCȚIEI - "D" IMPORTANTĂ REDUSĂ / GRADUL DE IMPORTAMNȚĂ - IV

* * * VĂ PUTEM OFERI PROIECTUL DE ARHITECTURA ÎN FORMAT DIGITAL(DWG) PENTRU IMPLEMENTARE ORIUNDE ÎN ȚARĂ * * *

 

{{rating}} / 5 -
{{#hasComments}}
    {{#comments}}
  • {{author}}
    {{addedDate}}
    {{subject}}
    {{#hasRating}}
    {{rating}} / 5
    {{/hasRating}}
    {{comment}}
    {{#hasReplies}}
      {{#replies}}
    • {{author}}
      {{addedDate}}
      {{reply}}
    • {{/replies}}
    {{/hasReplies}}
  • {{/comments}}
{{/hasComments}}