LOCUINTA "SOARE"

Aria construita: 116.33 mp

Aria desfasurata: 230.44 mp

Aria utila: 189.35 mp

CASA "SOARE"

ARIA CONSTRUITĂ
116,33 mp

ARIA DESFĂȘURATĂ
230,44 mp

   ARIA  UTILĂ 
189,35 mp

ÎNĂLȚIME STREAȘINĂ 
4,26 m

ÎNĂLȚIMEA MAXIMĂ
7,85 m

DIMENSIUNI ÎN PLAN
14,1 x 10,2

   TEREN MINIM
21 x 19

 

  • Prezentare generală

    Farmecul unei case trebuie să fie vizibil chiar de la fațada principală, iar una din efectele arhitecturale principale este punerea în valoare a intrării. Jocul volumetric dat de acoperișul lucarnei ce domină zona de dinning a parterului cât și utilizarea asimetriei dau valoare acestui proiect. Acest proiect a fost implementat într-o zonă deluroasă din localitatea Valea Doftanei, pe o parcelă bine poziționată de 1000mp, locație aleasă cu atenție în vederea construirii unei case superbe.
    Forma acoperișului cu pante accentuate specifice zonei de deal, finisajele speciale cu brâuri și ancadramente, cât și structura aparentă de lemn induc privitorul către arhitectura specifică montană.

  • Descriere funcţională

   Intrarea în casa cu aspect de vilă se face central, iar pe lateralul din dreapata s-au proiectat scara și băile pentru a lăsa libere laturile însorite în favoarea camerelor de locuit si a livingului. Etajul mansardat are pe fațada principală dormitorul matrimonial cu baie proprie și cu un dressing generos de aproape 9mp. Pe zona din spate s-au mai proiectat două dormitoare, iar spectacolul etajului este finalizat cu logia imensă cu vedere spre munți.
   La parter holul central ne dirijează în mod natural către livingul deschis care comunică direct cu bucătăria și zona de luat masa. Zona de zi beneficiază de o terasă octogonală parțial acoperită pentru a petrece căt mai mult timp chiar și în zilele ploioase.
   Casa unifamilială cu o suprafață utilă interioară de de 189mp, suprafață cu terase și balcoane, este soluția perfectă pentru o familie de cinci persoane.

Parter                  
terasă intrare – 2,97 mp
vestibul – 7,00 mp
hol – 12,24 mp
cămară – 3,55 mp
casa scării – 4,37mp
baie – 3,23 mp
cameră tehnică – 2,55 mp
birou – 10,72 mp
living – 27,57 mp
dinning – 5,81 mp
bucătărie – 8,90 mp
terasă acoperită – 5,36 mp

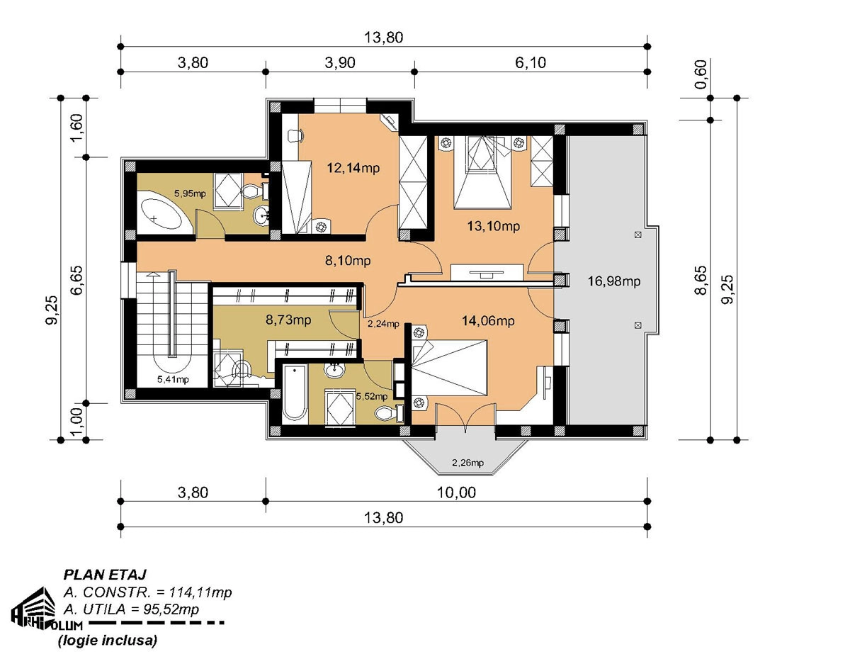
Etaj mansardat        
casa scării – 5,41 mp
hol – 8,10 mp
baie – 5,95 mp
dressing – 8,73 mp
hol – 2,24 mp
dormitor – 14,06 mp
baie – 5,52 mp
dormitor – 13,10 mp
dormitor – 14,06 mp
logie – 16,98 mp

  • Structură - Finisaje

    Locuința cu etaj este o construcţie care are structura de rezistenţă realizată din cadre de beton armat monolit, cu închideri din cărămidă cu goluri tip GVP de 30 cm grosime. Întreaga structură va fi termoizolată la exterior cu  polistiren expandat de 10 cm grosime. La interior, pereţii de compartimentare sunt realizaţi din cărămidă cu goluri tip GVP de 30cm, respectiv 15cm grosime. Acoperişul clădirii este realizat cu şarpantă de lemn şi învelitoare din ţiglă metalică. Scurgerea apei pluviale de pe acoperiş se realizează prin jgheaburi şi burlane din tablă zincată. Tâmplăria este realizată la exterior din profile PVC cu geam termopan, iar la interior din lemn.  

 Ca finisaje interioare se folosesc:
-    pardoseli din gresie antiderapantă la terase, scari, balcoane si vestibul;
-    pardoseli din parchet lamelar în toate camerele;
-    pardoseli din gresie în băi şi bucătărie;
-    placaj cu faianţă până la 1,80 m înălţime în băi şi bucătării;
-    tencuieli finisate cu vopsea lavabila.

  • Izolarea termică

Măsurile de termoizolare a clădirii sunt conforme normativului în vigoare, astfel obținăndu-se valori ce depașesc rezistența minima a transferului termic(R`m).Coeficientul global de izolare termica a unei cladiri (G), în ansamblu, reprezintă suma pierderilor de căldură realizate prin transmisie directă prin suprafața anvelopei clădirii, pentru  o diferenta de temperatura între interior si exterior de la 1 K, raportată la volumul clădirii, la care se adaugă pierderile de căldura aferente reîmprospătarii aerului interior, precum si cele datorate infiltrațiilor suplimentare de aer rece. Coeficientii globali de izolare termica  « G » au in vedere :
-   Pierderile de căldură prin transfer termic, aferente tuturor suprafețelor perimetrale, care delimitează volumul încalzit al clădirii ;
-   Pierderile de căldură aferente unor condiții normale de reîmprospătare a aerului intrerior ;
-   Pierderile de căldură suplimentare datorate înfiltrației în exces a aerului exterior, prin rosturile tâmplariei.
Prin concepția complexă a clădirii (configurație, alcătuirea elementelor de construcție perimetrale etc.), cât si prin modul de alcatuire a detaliilor, s-au limitat pierderile de căldură conform Normativ C 107 / 2005 privind calculul coeficienților globali de izolare termică la clădirile de locuit. 

  • Caracteristici  PSI si încadrari 

 RISC DE INCENDIU  - risc mic de incendiu / REZISTENȚĂ LA FOC - GRADUL III /CATEGORIA DE IMPORTANȚA A CONSTRUCȚIEI - "D" IMPORTANTĂ REDUSĂ / GRADUL DE IMPORTAMNȚĂ - IV

* * * VĂ PUTEM OFERI PROIECTUL DE ARHITECTURA ÎN FORMAT DIGITAL(DWG) PENTRU IMPLEMENTARE ORIUNDE ÎN ȚARĂ * * *

 

{{rating}} / 5 -
{{#hasComments}}
    {{#comments}}
  • {{author}}
    {{addedDate}}
    {{subject}}
    {{#hasRating}}
    {{rating}} / 5
    {{/hasRating}}
    {{comment}}
    {{#hasReplies}}
      {{#replies}}
    • {{author}}
      {{addedDate}}
      {{reply}}
    • {{/replies}}
    {{/hasReplies}}
  • {{/comments}}
{{/hasComments}}